přidávám další vývoj školky.
Koncept i umístění školky zůstává stejné. Jen jsem od minule změnila kruhový centrální prostor zpět na čtvercový a vyřešila jsem jeho pootočení, aby bylo konstrukčně možné.
Dále jsem interiér školky lépe přizpůsobila světovým stranám. Také jsem zkrátila vstupní chodbu tím, že jsem vytvořila závětří. Zkoušela jsem také vyřešit část pro personál školky (ředitelna, přípravna jídla a prostor pro učitele). Nepodařilo se mi však přijít na způsob, jak bych do dané části uspořádala místnosti bez zvláštního vstupního prostoru.
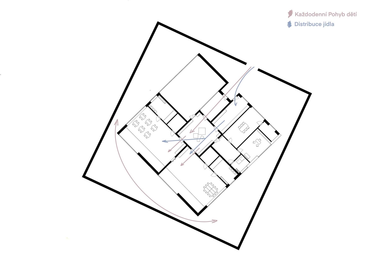
Zde mám zaznačený pohyb jídla a dětí ve školce.
Dále jsem se zabývala exteriérovými zónami a propojením jednotlivých částí. Části bych chtěla propojit "chodníčkem" kolem celé školky, kolem kterého by byla vyšší tráva, která by tvořila plynulejší prostor u některých částí zelené plochy. U obou tříd by se pak nacházela zpevněná plocha, která se taktéž nachází při vstupu. Ta by pak mohla být stíněna ve výškové úrovni "plotu"







Žádné komentáře:
Okomentovat